Vítame Vás v stavebninách Dado - najväčšie stavebniny v regióne
dadostav@gmail.com
045 55 11 722
Úvod
Stavebniny
Elektro
Železiarstvo
Kúpelňové štúdio
Kúrenie, voda
Farby, laky
Stavebný materiál
Požičovňa náradia
Betonáreň
Väzníkové krovy
Stavebná činnosť
Kontakty
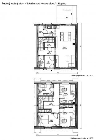
Radová výstavba Krupina
Priložené fotografie